
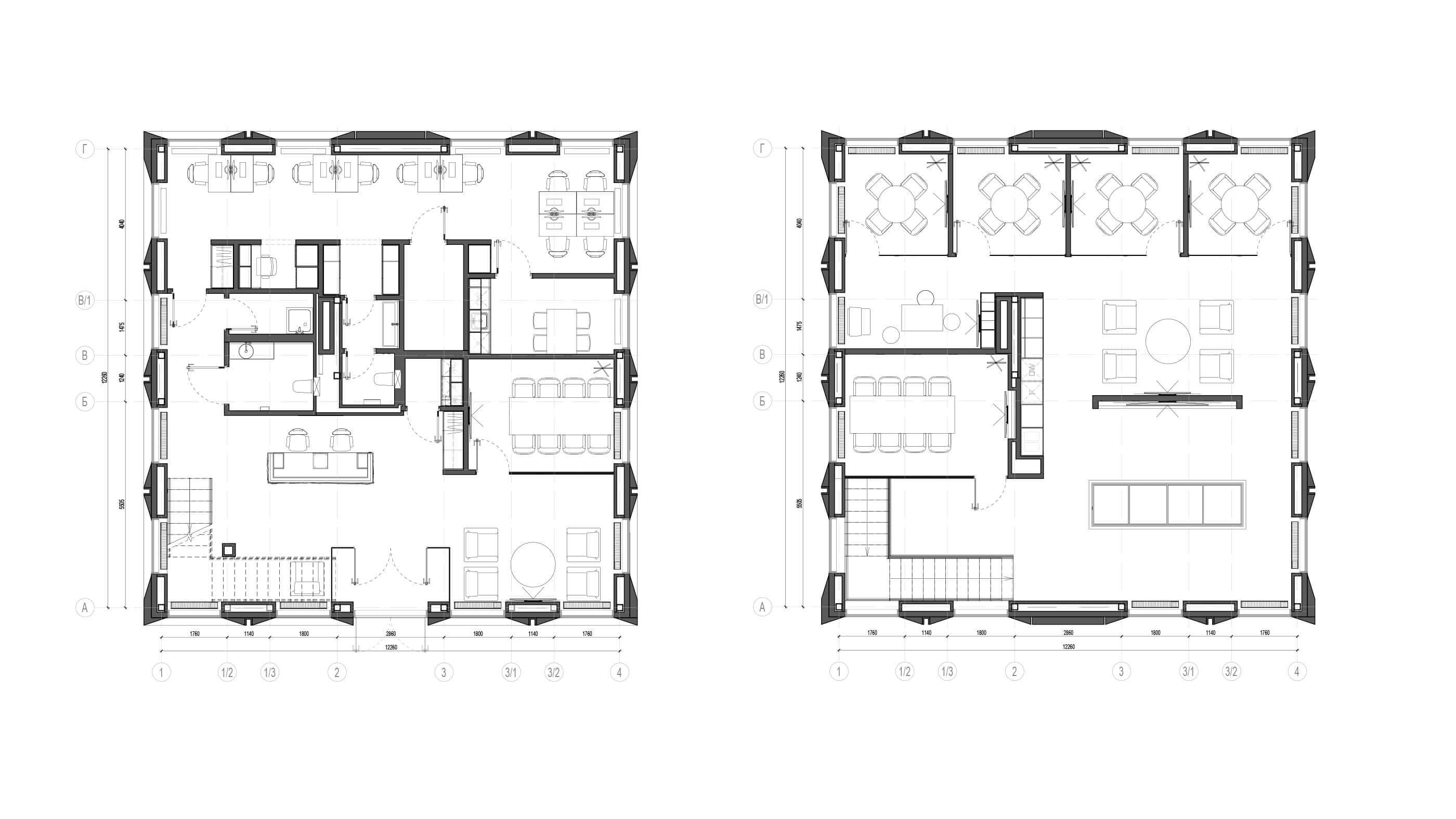
Sales office “Mangazeya on the River”
Moscow, Russia
2024
Projects for developers
Sales office “Mangazeya on the River”
2024Client:Mangazeya
Year:2024
Location:Moscow, Russia
Square:275 m²
О проекте
Северные воды — холодные воды. Но и они могут нести ощущения тепла, спокойствия, внутренней наполненности. В концепции мы стремились передать оттенки природы северных краев. Момент, когда природа просыпается, солнце покрывает землю и активирует медитативное состояние человека. Офис продаж жилого комплекса «Мангазея на речном» — это кусочек северного мягкого утра внутри мегаполиса. Территория спокойствия и умиротворенности.




